DSCF3288 (Web).JPG

Brücke "Am Grenzrasen" Nordhausen

Projektbeschreibung: Neubau des Unter- und Überbaus einer Einfelderbrücke (Grenzrasen), Nordhausen. Belag: Lärchenbohlen, geriffelt.

DSC02259 (Web).JPG

Dachneubau Conrad-Fromann-Straße, Nordhausen

Dachneubau auf den Wohnblöcken der Conrad-Fromann-Straße in Nordhausen. Es wurde mittels zimmermannsmäßigem Abbund auf ein

P1000023 (Web).JPG

Umbau Wohnhaus in Auleben

Bei diesem Projekt stellte die Topographie eine große Herausforderung an alle Projektbeteiligten. Gartenseitig ebenerdig,

CIMG9705 (Web).JPG

Neubau eines EFH (3) in Urbach

Die Bauherrschaft betraute uns mit der Planung ihres Traumhauses, bestehend aus einem Vollkeller sowie einem 1,5-geschossigem Aufbau.

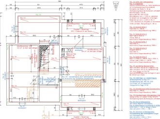
Decke1.JPG

Tragwerksplanung für ein EFH in Deutsch-Evern

Bei diesem Vorhaben wurden wir mit der Ausführungsplanung (Tragwerksplanung) für ein 2-geschossigen Einfamilienhaus-Neubau

4.jpg

Neubau Fußgängerbrücke Sundhausen

Die Fußgängerbrücke in Sundhausen wurde im Zuge von Hochwasserschutzmaßnahmen errichtet. Für unseren Auftraggeber fertigten wir

17072009075.jpg

Neubau eines EFH (2) in Urbach

Neubau eines 1,5-geschossigen Einfamilienhauses in Urbach. Unsere Leistungen: komplette Gebäudeplanung sowie

CIMG8448 (Copy).jpg

Abbruch Kranichstraße

Abbruch eines leerstehenden Gebäudes in der Nordhäuser Altstadt. Aufgrund seiner exponierten Lage inmitten innerstädtischer Bebauung,

CIMG8408 (Web).JPG

Trauerhalle Wernrode

Die Trauerhalle Wernrode wies zu Projektbeginn einen sehr schlechten Zustand auf. Aufgrund mangelnder Abdichtung, war das Mauerwerk in

CIMG9080 (Web).JPG

Umbau Dachgeschoss der SBBS I

Nutzungsänderung der ehemaligen Hausmeisterwohnung im Dachgeschoss der SBBS I in Nordhausen. Umbau zu Praktikumsräumen der MEFA

CIMG9185-00 (Web).jpg

Abbruch Wohnhaus Stolberger Straße 13 - 15

Die SWG Nordhausen mbH beauftragte unser Büro mit der Betreuung des Abbruches bzgl. eines leerstehenden Wohnhauses in der Stolberger

CIMG2163 (Web).JPG

Dorfgemeinschaftshaus Steinbrücken

Das Dorfgemeinschaftshaus in Steinbrücken wurde in den Jahren 2009 und 2010 in 2 Bauabschnitten umgebaut. Planende Architekten waren: